Matériau : bois massif, épicéa du Nord
Épaisseur des parois : madriers 40mm
Couleur : marron
Hauteur faitage : 267cm
Hauteur parois : 214cm
Surface totale : 22m²
Toit en bois massif : voliges 20mm
Lames anti-tempêtes fournies
Plancher INCLUS
Garantie : 5ans
Surface intérieure <20m² – Sans permis de construire
» Voir tous les détails techniques » Voir tous les détails techniques
L’avis du spécialiste sur l’abri de jardin en bois massif 22m² MODERNE traité marron 40mm Gardy Shelter
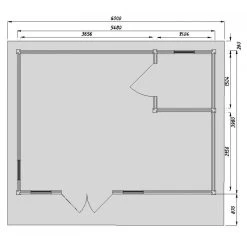
Proposé en couleur marron, cet abri de jardin moderne de Gardy Shelter mettra à votre disposition une surface utile de 20m², prête à accueillir vos documents professionnels, votre mobilier de jardin ou vos amis pour y passer des repas couverts dans votre jardin. L’atmosphère est très agréable grâce à la double porte vitrée et aux grandes fenêtres fixes qui y laisseront pénétrer la lumière naturelle. Les parois, hautes de 214cm et la cloison intérieure, équipée d’une porte simple, vous permettront de ranger votre abri de jardin d’une manière optimale et conforme à vos besoins.
Réalisé en épicéa du Nord, l’abri de jardin au toit plat 40mm de Gardy Shelter est traité, en usine, insecticide et fongicide classe III, qui est pour vous un gain de temps et d’argent important. Les madriers sont parfaitement protégés contre le pourrissement, les intempéries et les vermines, et ne nécessitent aucun autre traitement avant le montage. Ils s’emboîtent aux doubles rainures et languettes ce qui contribue à la grande stabilité de votre abri en bois. Vous n’aurez qu’à les lasurer tous les 2 à 3 ans en fonction de l’exposition de votre abri en bois aux intempéries.
L’abri de jardin 22m² de Gardy Shelter est livré avec un plancher en bois massif et des lambourdes, traitées autoclave qui servent à l’isoler du sol. Quant au toit, il est conçu en voliges épaisses de 20mm qui sont couvertes d’un feutre bitumé. Pour apporter à votre abri de jardin une étanchéité idéale et une finition haut de gamme, ajoutez un revêtement durable comme une bâche EPDM ou PVC, par exemple.
Quelques données techniques :
. Porte intérieure : simple, pleine, fermeture à cle, dimensions porte: 920 x 1900 mm
. Porte d’entrée : double avec serrure à clé et double vitrage 4-9-4mm, dimensions porte: 1420 x 2090 mm
. Fenêtres :
3 fenêtres 1 vantail battant avec double vitrage 4-9-4mm, de dimensions 56x202cm,
2 fenêtres fixes avec double vitrage 4-9-4mm, de dimensions 56x107cm,
1 fenêtre battante avec double vitrage 4-9-4mm, de dimensions 56x56cm























Avis
Il n’y a pas encore d’avis.